1000 KVA Transformator-24,9/0,48 KV|ABŞ 2025
Gücü: 1000KVA
Gərginlik: 24900GrdY/14376V-480Y/277
Xüsusiyyət: Günəş enerjisi{0}}Optimallaşdırılmış Dizayn
Jiangshan Scotech Electrical Co., Ltd 1000 KVA Transformatorun ən etibarlı istehsalçılarından və təchizatçılarından biridir-24,9/0,48 KV|Çində ABŞ 2025. Zəhmət olmasa, burada satış üçün sərfəli məhsullar almaq və zavodumuzdan diaqramlar əldə etməkdən çəkinməyin. Ətraflı məlumat üçün bizimlə əlaqə saxlayın.

01 Ümumi
1.1 Layihənin təsviri
2025-ci ildə biz ABŞ-dakı müştərilərimizdən birinə 30 ədəd üçfazalı -fazalı transformator göndərdik. Bu qurğular etibarlılığı, yüksək səmərəliliyi və uzunmüddətli performansı özündə birləşdirən orta{13}}gərginlik paylanması üçün xüsusi olaraq hazırlanmışdır. Elektrik baxımından bu pilləli transformator-480Y/277 V-də aşağı gərginlikli giriş və kommunal paylama sistemləri ilə qarşılıqlı əlaqə üçün-24,900 GRDY/14,376 V-də orta gərginlikli çıxış üçün nəzərdə tutulmuşdur.
Bütün transformatorlar pad-yerləşmiş və sönük-qabaqda quraşdırılmışdır, açıq havada quraşdırma və sərt ekoloji şərait üçün hazırlanmışdır. Hər bir qurğu yanğından və istilikdən qorunmaq üçün FR3 izolyasiya yağından, etibarlı keçiricilik və azaldılmış itkilər üçün alüminium sarımlardan və UV- və korroziyaya{5}}davamlı örtüklü möhkəm çənlərdən istifadə edir. Onlar sadəcə metal qutular deyil,-diqqətlə hazırlanmış orta gərginlikli paylayıcı transformatorlardır, hətta dəyişən yüklər altında da illər boyu etibarlı işləmək üçün qurulmuşdur.
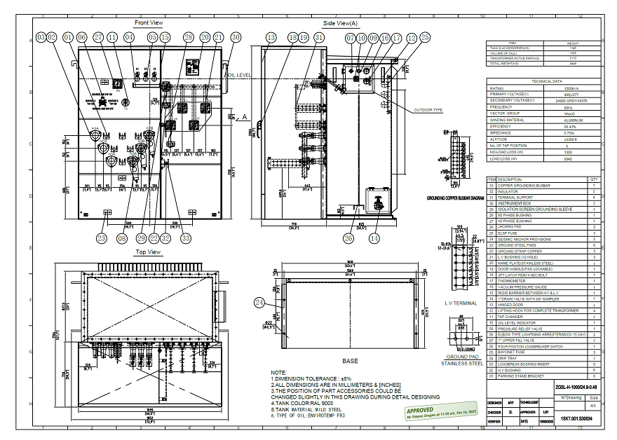
1.2 Texniki spesifikasiya
1000kVA üç fazalı ped quraşdırılmış transformatorun spesifikasiyası və məlumat vərəqi
|
-a çatdırılır |
Amerika |
|
il |
2025 |
|
Növ |
Üç fazalı pad montaj transformatoru |
|
Standart |
IEEE |
|
Nominal güc |
1000KVA |
|
Tezlik |
60HZ |
|
Yem |
Döngə |
|
Ön |
Ölü |
|
Faza |
üç |
|
Soyutma növü |
KNAN |
|
Maye izolyator |
FR3 yağı |
|
İlkin Gərginlik |
24900GrdY/14376V |
|
İkincil gərginlik |
480Y/277 |
|
Vektor qrupu |
YNyn0 |
|
Sarma materialı |
Alüminium |
|
Empedans |
5.75% |
|
Səmərəlilik və itkilər Standart |
DOE 2016 |
|
Dəyişdiriciyə toxunun |
4-poslu yükləmə açarı |
|
Tapma diapazonu |
±2*2.5% |
|
Yük itkisi yoxdur |
1300 W |
| Yük itkisi haqqında | 6940 W |
| Aksesuarlar | Dirsək-tipli gərginlik qoruyucu |
1.3 Rəsmlər
1000KVA üç fazalı ped quraşdırılmış transformator ölçüləri və çəki detalları
![]() |
![]() |
02 Əsas məqamlar
2.1 Etibarlı və Davamlı


Bu transformatorlar məsafəni qət etmək üçün tikilir. Biz onları möhkəmləndirilmiş çənlər,-korroziyaya davamlı örtüklər və yüksək-keyfiyyətli FR3 yağı ilə dizayn etdik ki, onların uzun illər təhlükəsiz işləməsini təmin etdik. Alüminium sarımlar, üç{5}}fazalı, beş-sütun düzümü ilə birləşərək, istilik və elektrik gərginliyini bərabər paylayır-beləliklə, heç bir qaynar nöqtə və ya gözlənilməz problem görməyəcəksiniz. Onları açıq havada istifadə üçün tikdiyimiz üçün onlar günəşi, yağışı və rütubəti sürətlə qəbul edirlər, tərləmir.
2.2 Yüksək Səmərəlilik və Enerji-Qənaət

Səmərəlilik vacibdir və bu vahidlər çatdırır. Onlar DOE 2016-nın səmərəlilik standartlarına cavab verir, həm yüksüz, həm də yük itkilərini aşağı- saxlamaq üçün optimallaşdırılmış özəklər və sarma sxemləri ilə. 1000 kVA qurğular üçün bu, 1300 Vt-yüksüz itki və 6,940 Vt{11}}yük itkisidir. 5,75% empedans gərginliyin sabitliyini tarazlaşdırmaq və enerji sərfiyyatını azaltmaq üçün diqqətlə seçilir, əməliyyat xərclərini-gündən-günə effektiv saxlayır.
2.3 Təhlükəsiz və İdarə oluna bilən
Təhlükəsizlik və monitorinq əsasdır. Hər bir transformator daxildir:
1. Kolda yüksək-200A tıxac-
2. Aşağı gərginlikli 12 deşikli kürək terminalları və torpaqlama lövhələri
3. Üç metr və bir klapan olan-yandan quraşdırılmış alət qutusu
4. Dirsək tipli-qoruyucuları və qoruyucuları vasitəsilə ildırımdan mühafizə
5. Gərginliyin dəqiq tənzimlənməsi üçün OLTC kran dəyişdiricisi (±2×2,5%)
6. Etibarlı işləmək üçün H0/X0 naqillərini və torpaqlama qoruyucularını ayırın
Bütün bu xüsusiyyətlər bölmələri işləmək üçün təhlükəsiz, nəzarəti asanlaşdırır və müxtəlif şəbəkə şərtlərinə uyğunlaşmağa hazır edir.






2.4 Çevik və Asan Quraşdırılır
Yastiqciq{0}}quraşdırılmış dizayn hətta sıx şəhər və ya sənaye ərazilərində belə quraşdırmanı sadə edir. Loop{2}}lent konfiqurasiyası mövcud şəbəkələrə asan inteqrasiyaya imkan verir. Standartlaşdırılmış aksesuarlar, o cümlədən dörd mövqeli yükləmə açarı-, istismarı və texniki xidməti asanlaşdırır. Hər bir qurğu tez bir zamanda qoşula və işə salına bilər ki, bu da məhsuldarlığı itirmədən müştərinin vaxtına qənaət edir.
03 Eko{1}}Dostluq Dizayn

Biz bu partiyanın təmiz və uzun müddət işləməsini istədik, buna görə də dizayn davamlılığa çox ciddi şəkildə meyl edir.
1. İlk növbədə, transformatorlar FR3 bio{2}}əsaslı yağdan-bərpa olunan, bioloji parçalana bilən və adi mineral yağdan daha çox ətraf mühitə uyğun olan yağdan istifadə edir. O, həmçinin bölmələri soyuducu saxlayır, bu da xidmət müddəti üçün gözəl bir bonusdur.
2. Onlar həmçinin yüksək məhsuldarlıq-maşınları olmaq üçün yaradılmışdır. Daha az yük itkisi, aşağı yük itkisi, daha az yük itkisi… illər ərzində daha az enerji sərfi. Əməliyyat xərcləri üçün yaxşıdır və düzünü desəm, planet üçün yaxşıdır.
3. Korroziyaya davamlı-çən də öz rolunu oynayır. Daha sərt bir çən daha az təmir, daha az dəyişdirmə və transformatorun ömrü boyu istifadə olunan daha az material deməkdir.
4. Və qoruyucu örtüklərlə möhürlənmiş konstruksiya sızmaların qarşısını alır və nəmdən qoruyur. Əməliyyat üçün daha təmiz, sayt üçün daha təhlükəsiz və narahat olmaq üçün daha az şey.
04 Qablaşdırma və daşınma


Seksual Tags: 1000 kva transformator,istehsalçı,təchizatçı,qiymət,xərc
You Might Also Like
75 kVA Pad montaj transformatoru-22,86/0,208 kV|ABŞ ...
1500 kVA Yerüstü Transformator-34,5/0,48 kV|ABŞ 2024
2500 kVA Yastıqlı Transformator-13,2/0,48 kV|Kanada ...
3000 kVA Yastıqlı Transformatorlar-23/0,38 kV|Salvad...
150 kVA Ansi Transformator-24,94/0,208 kV|ABŞ 2024
1000 KVA Yastıqlı Transformator Torpaqlama-4.16/0.48...
Sorğu göndər










